南通方圣石化设备有限公司主要开发生产S系列静态混合器、喷射器、减温器,VJG系列精细过滤器、SB系列泵用过滤器,以及消声器、视镜、阻火器、呼吸阀等九大类。
   静态混合器
   加热设备系列
   动态混合设备
   过滤设备
   纸浆专用设备
   SKL型浆氯静态混合器
   浆氯分配器
   LH型氯水分散混合器
   LQ-1468型液氯汽化器
   LYZ型氯气逆止罐
   LP型氯化喷射器
   胺液回收器
   KAGZ型高效组合在线胺液过滤装置
   新型高效石化净化/聚结分离装置
   预过滤器
   硫封器
   填料式管道自动补偿器
   高效有机蒸汽吸附装置
   KDPB型低压脉冲喷吹袋式除尘器
   KDPB390系列低压脉冲长袋除尘器
   KDPB390系列低压脉冲长袋除尘器
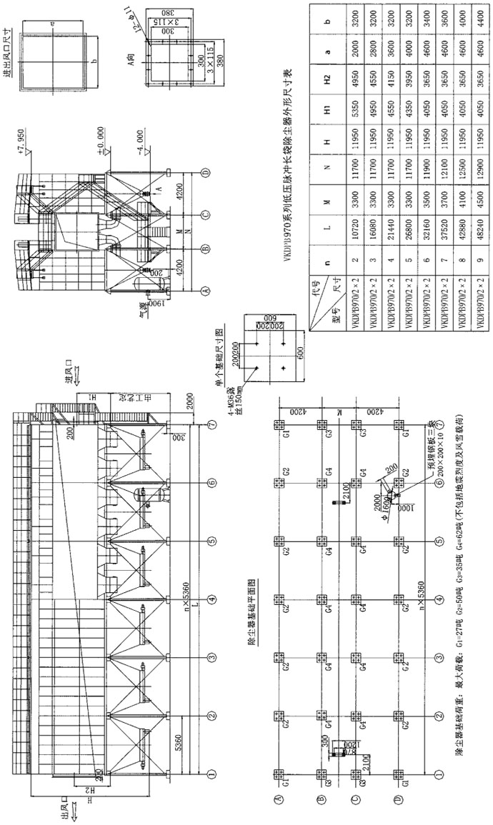
   KDPB970系列低压脉冲长袋除尘器
   管用专用小型设备
   油罐附件系列
   煤气管道排水器
 

 南通方圣石化设备有限公司
 地址:启东市汇龙镇台角工业园区
 邮编:226200
 电话:0513-83639880
 传真:0513-83639099
 在线咨询:
 微信:15851380122
 微信:15365547782
 http://www.ntfssh.com
 E-mail:fs@ntfssh.com

产品介绍 首页 >> 产品介绍
VKDPB970系列低压脉冲长袋除尘器外形图(双排)
安装、调试及维护、保养
 1、VKDPB型低压脉冲喷吹袋式除尘器的安装顺序如下:
   a、除尘器基础
   b、底部钢架
   c、灰斗
   d、中箱体
   e、上箱体
   f、反吹清灰装置
   g、压差系统及电控部分
   h、油漆
   i、滤袋
   j、袋笼
   k、喷吹管。
 2、安装注意事项
   ①安装前请仔细阅读使用说明书、外形安装图等资料,并按发货清单检查零部件的数量及质量;
   ②按安装顺序安装时,每一步骤都必须进行质量检查,确保无误后方可进行下一步骤的安装;
   ③气路设备组装时,要求管路内必须清理干净;
   ④滤袋不得有任何损伤,每安装一只滤袋必须马上安装袋笼;
   ⑤设备安装完毕,必须对所有需加润滑油处重新加润滑油。
 3、调试
   ①检查脉冲喷吹系统是否正常喷吹,喷吹顺序是否正确;
   ②喷吹用压缩空气压力应保持在0.2~0.3MPa,不得过大或过小;
   ③检查设备上电机及机械传动部分是否正常;
   ④设备空负荷运行;
   ⑤设备带负荷运行,要求各部分运行正常,并根据设备运行阻力的变化调整清灰周期。
 4、维护与保养
   ①根据除尘器的吸尘量确定设备收尘量,进行定期排灰;
   ②根据压缩空气系统中气水分离器的气包积水情况确定定期积水排放;
   ③经常检查除尘器脉冲清灰系统是否正常喷吹,如不正常则着重检查脉冲阀膜片、电磁阀有无失灵或损坏;
   ④定期检查易损件的使用情况并及时更换;
   ⑤定期对设备润滑部位,补充润滑油。
 
南通方圣石化设备有限公司 地址:启东市汇龙镇台角工业园区 邮编:226200 混合器|汽水混合器
电话:0513-83639880 传真:0513-83639099
点击这里给我发消息