管道过滤器 |
| 一、产品概述 |
|
过滤器是除去液体中少量固体颗粒的小型设备,可保护压缩机、泵、仪表和其它设备的正常工作,当流体进入置有一定规格滤网的滤筒后,其杂质被阻挡,而清洁的滤液则由过滤器出口排出,当需要清洗时,只要将可拆卸的滤筒取出,处理后重新装入即可,因此,使用维护极为方便。
本公司生产的过滤器具有结构紧凑、过滤能力大、压损小、适用范围广、维护方便、价格低廉等优点,其主要适用的物料有:
化工、石油化工生产中弱腐蚀性物料,如:水、油品、氨、烃类等。
化工生产中的腐蚀性物料,如:树脂、烧碱、纯碱、浓稀硫酸、醛酸等。
制冷中的低温物料,如:液甲烷、液氨、液氧和各种冷剂。
食品、制药生产中有卫生要求的物料,如:啤酒、饮料、乳制品、糖浆等。 |
| 二、型号标注 |
| 本公司生产的管道过滤器,主要有:1、Y型过滤器 2、T型过滤器 3、篮式过滤器 4、临时过滤器 5、气体过滤器。 其型号标注如下: |
| 1、Y型过滤器 |
| SBYZ、SBY、SC型 |
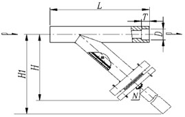
| (1)Y型铸造螺纹连接式SBYZ-R、承插焊接式SBYZ-SW(DN15~50,PN≤5.0MPa) |
 |
|
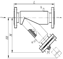
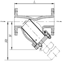
| (2)Y型铸造同径法兰连接式SBYZⅠ-F(图一)(DN15~250,PN≤5.0MPa) |
|
| (3)Y型铸造异径法兰连接式SBYZⅡ-F(图二)、异径对焊连接式SBYZⅡ-W(图三)(DN40×32~250×200,PN≤5.0MPa) |
|
|
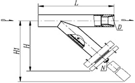
| (4)Y型焊接锥管螺纹式SBY-R(图一)、承插焊式SBY-SW(图二)(DN15~40,PN≤5.0MPa) |
|
|
| (5)、Y型焊接法兰连接式SBYⅡ(图三、图四)(DN15~400、PN≤5.0MPa) |
 |
|
图三SBYⅡ、DN15~25 |
|
图四SBYⅡ、DN32~400 |
|
|
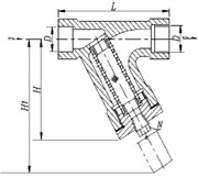
| (6)、Y型带夹套焊制法兰连接式SBYⅡ(图一)(DN20~200,PN≤5.0MPa) |
|
| (7)Y型异径法兰连接式SBYD-F(图二)(PN≤10.0MPa) |
| (8)Y型焊制异径对焊接式SBYD-W(图三)(PN≤10.0MPa) |
|
|
|
同心异径 |
上偏心异径 |
下偏心异径 |
图二 |
|
|
|
同心异径 |
上偏心异径 |
下偏心异径 |
图三 |
|
| (8)Y型异径法兰连接式SBYD-F(图二)、Y型焊制异径对焊接式SBYD-W(图三)(PN≤10.0MPa) |
|