南通方圣石化设备有限公司主要开发生产S系列静态混合器、喷射器、减温器,VJG系列精细过滤器、SB系列泵用过滤器,以及消声器、视镜、阻火器、呼吸阀等九大类。
   静态混合器
   蒸汽加热设备系列
   动态混合设备
   过滤设备
   一、管道过滤器
     1、SBY过滤器
     2、SBT过滤器
     3、SBL过滤器
     4、SBV过滤器
     5、SBW过滤器
   二、自洁式过滤器
     1、ZJD自洁式过滤器
     2、ZJD刷式自洁式过滤器
     3、ZJD吸吮扫描式过滤器
     4、ZJDL反冲洗自洁式过滤器
     5、ZJDP导流自洁式过滤器
     6、ZJD自洁式过滤器电控装置
     7、使用指南
   三、手动清洗过滤器
   四、精细过滤器
     1、ZJF过滤器
     2、常见滤芯式精细过滤器
     3、袋式精细过滤器
   五、空气过滤器
     1、FSGI型送风空气过滤器
     2、FSGII型吹风空气过滤器
   活性碳过滤器
   七、盘式过滤器
   八、FSD消气过滤器
   九、滤件系列
     1、VJGM型金属滤芯
     2、VJGM型非金属滤芯
     3、滤袋系列
   纸浆专用设备
   管用专用小型设备
   油罐附件系列
   煤气管道排水器
 

南通方圣石化设备有限公司
地址:启东市汇龙镇台角工业园区
邮编:226200
电话:0513-83639880
传真:0513-83639099
在线咨询:
微信:15851380122
微信:15365547782
http://www.ntfssh.com
E-mail:fs@ntfssh.com

产品介绍 首页 >> 产品介绍
使 用 指 南
产品安装与使用指南
  为了维修方便,ZJD系列自洁式过滤器安装时应在进出口设阀门,并做旁通管路;为了防止过大的杂物进入过滤器,建议在过滤器的入口端安装固定过滤网。
  另外,安装时应注意外壳上的箭头方向与水流方向一致。

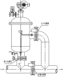
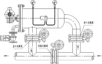
  下图为过滤器的几种安装形式,供用户安装时参考。
直通式结构
角式结构
平行式结构
多台并联式结构
  配备专用开启机构的过滤器,无需外部起吊装置,即可拆卸顶盖。
订货须知
  1、用户订货时请正确提供产品名称、规格型号、最高工作压力、工作温度、过滤精度、材质、连接法兰标准;
  2、电机是否需防爆、是否户外工作;
  3、特殊要求另行说明;
  4、过滤精度的选择
  一般来讲,过滤器的过滤精度选择高一些,截污量就大一些,而实际上对过滤器来讲并非过滤精度越高越好,通常只要满足工艺要求即可,特别是当水中含油时精度越高越容易糊网。因此,选择过滤精度时必须综合考虑,以下参数供选择Johnson滤网精度时参考:
  (1) ZJDLⅢ型反冲洗式自洁式过滤器、ZJDP型导流式自洁式过滤器的Johnson滤网的V型断面必须尖端朝外,选用过滤精度为0.2-0.30mm时允许浊液含油量≤10mg/L; 选用过滤精度为0.10-0.20mm时允许浊液含油量≤5mg/L;
  (2) ZJD系列刷式、ZJD系列吸吮扫描式自洁式过滤器允许浊液中含油量比上列参数再提高50%。
  5.前置粗过滤器
  由于管道施工及管理上的不完善,在实际操作中常发现管道系统中进入那些未被清除的大杂物,如钢板边角料头、焊条头、木块、砖、石块以及破布等直接进入过滤器,导致过滤器不能正常工作。为此,用户可在过滤器的入口设置粗过滤器,以滤去管路中的大杂质,保护过滤器的正常运行。(我厂生产的F B系列管道过滤器即可作为前置粗过滤器)
供货范围
  1、过滤器主机
  2、电动排污阀
  3、手动排污阀
  4、电 控 箱
  5、配对法兰及前置粗过滤器根据用户要求提供
 
南通方圣石化设备有限公司 地址:启东市汇龙镇台角工业园区 邮编:226200 混合器|汽水混合器
电话:0513-83639880 传真:0513-83639099