南通方圣石化设备有限公司主要开发生产S系列静态混合器、喷射器、减温器,VJG系列精细过滤器、SB系列泵用过滤器,以及消声器、视镜、阻火器、呼吸阀等九大类。
   静态混合器
   蒸汽加热设备系列
   动态混合设备
   WZ型无重力粒子混合机
   RL型螺条式混合机
   DL型螺旋锥形混合机
   LS型螺旋输送机
   XF型星形出料阀(旋转加料器)
   ME型高剪切混合乳化机
   JF型搅拌釜
   YJ型可移动式轻型搅拌机
   GH型侧向伸入式搅拌机
   过滤设备
   纸浆专用设备
   管用专用小型设备
   油罐附件系列
   煤气管道排水器
 

 南通方圣石化设备有限公司
 地址:启东市汇龙镇台角工业园区
 邮编:226200
 电话:0513-83639880
 传真:0513-83639099
 在线咨询:
 微信:15851380122
 微信:15365547782
 http://www.ntfssh.com
 E-mail:fs@ntfssh.com

产品介绍 首页 >> 产品介绍
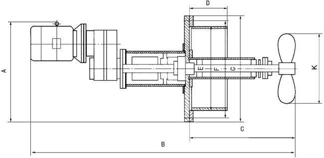
GH型侧向伸入式搅拌机
一、基本原理
  侧向伸入式搅拌机是由储罐的侧壁伸入罐内,它通过法兰盖与罐体的开口法兰相联结。搅拌机的桨叶为船用螺旋桨型。由于螺旋桨的转动,使罐内液体产生两个方向的运动,一个沿着螺旋桨轴线方向向前运动,另一个沿螺旋桨圆周方向的运动。轴线方向的运动,由于受到罐壁的阻碍而使罐内液体沿着罐壁作圆周方向的运动,而液体沿螺旋桨圆周方向的运动,就使罐内液体上下翻动,这样就使罐内液体得到搅拌,并可防止罐内沉积物的堆积。
二、设备作用
  侧向伸入式搅拌机适于安装在储存粘度较低液体的大中型立式储罐上,其作用:
  1.防止储罐内沉积物的堆积,特别在原油罐中,可以起到清罐作用,代替笨重的人工清罐并可增加储罐的有效容积。
  2.使混合好的油品保持均匀和防止分层。
  3.把两种或两种以上的物料进行混合,可在规定时间里获得合格的混合产品。
  4.加强储罐内的热交换,保持介质温度均匀。在实际的应用中,上述四种功能有可能只用一种,也可能多种。一般来说,满足了最苛刻的用途,其它用途也能满足。通常情况下,混合是要求最苛刻的。
三、主要结构
  1.搅拌机采用减速机直接传动,运转平稳。
  2.为了维护检修的方便,在轴端设置了危急遮断机构。
  3.旋转轴的密封结构有机械密封和填料密封两种。两种能够互换,可按实际需要选用。
  4.可变插入角型搅拌机的摆动机构是球形旋转接头。球是用不锈钢制造的,其表面经抛光处理。球与空心支座之间采用O型密封圈密封。球与法兰密封座之间用二道密封。
四、侧向伸入式搅拌机的分类
  侧向伸入式搅拌机可分为固定插入角型GHA和可变插入角型GHB两大类。
  1、固定插入角型搅拌机的轴只旋转而不能摆动,它适用于液体介质的混合,其效果是很好的。但这时储罐内的液体的流动状态是固定不变的。若用于清罐则死角区的沉积物无法清除。
  2、可变插入角型搅拌机的轴与储罐中心线之间的夹角,可按操作需要,在左、右30度范围内变动。这种搅拌机可改变罐内液体的流动状态,从而消除死区,可以有效地减少罐内沉积物与堆积量。
  所以,凡以清除罐底沉积物为主要目的的储罐,使用可变插入角型搅拌机比使用固定插入角型的具有更多的优点,节省了投资,减少了动力消耗,清罐效果好。
五、搅拌机的选用及基本参数
  搅拌机的选用与介质的性质、油罐的容积、搅拌的目的、操作的目的、操作条件等有关。因此,在选用搅拌机前首先必须确定这些条件,再根据这些条件确定搅拌机的型式和功率。
1、固定插入角型搅拌机的功率按下表选用
2、可变插入角型搅拌机的功率按下表选用
3、固定插入角型搅拌机的六种规格,其主要技术参数见下表
4、变插入角型搅拌机有四种规格,其主要技术参数见下表
 
南通方圣石化设备有限公司 地址:启东市汇龙镇台角工业园区 邮编:226200 混合器|汽水混合器
电话:0513-83639880 传真:0513-83639099